Specialty
SHARK COMPACTOR

Overview
The patented Shark Compactor is ideal for compacting and transporting large waste products that are too bulky to be handled by traditional compactors.
The large 5m3 fold down feed hopper has a low front edge for ease of loading. Its 50 tonne packing force and heavy duty design easily crushes and compacts the most difficult of waste types presented ie. furniture, mattresses, white goods, plastic chemical containers, insulation bats and oversize boxes.
When not in use the hopper is stored in the raised position ensuring it is safe when used in unsupervised locations.
The Shark is ideal for use as a “Pop Up’ Transfer Station application as it requires no civil works or saw tooth bays and can be diesel powered.
Key Features
Designed with a unique low-loading height making it ideal for a variety of waste streams.
Easily crushes and compacts the most difficult waste types using its 50-tonne packing force and heavy-duty design.
Ideal for use as a ‘Pop-Up Transfer Station’ as it does not require civil works or saw tooth bays.
Suitable for Cardboard, Plastic Containers, General Waste, Insulation Batts, Large Compactable Waste Stream.
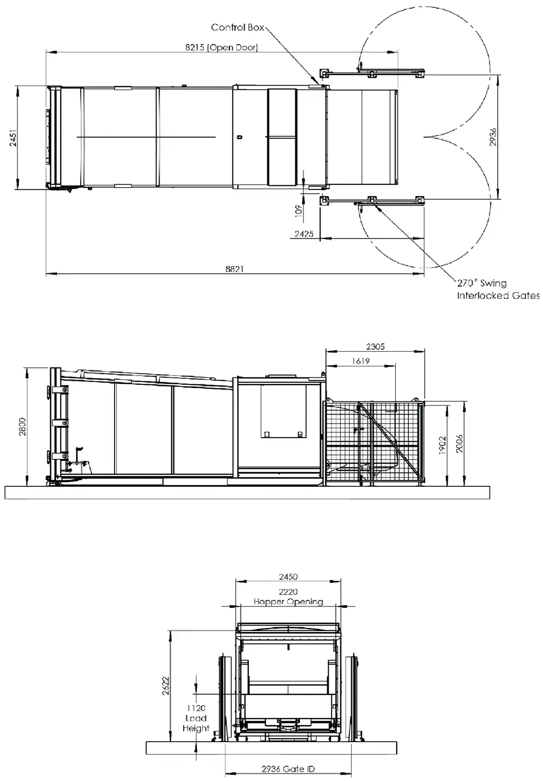
Technical Specifications
| Specification | Value |
|---|---|
| Clear Top Opening (W x L) | 2200mm x 2200mm |
| Machine Capacity | 300 m³/hr |
| Cycle Time | 20 sec. to lower & prepare, 50 sec. complete cycle |
| Motor Size | 5.5 kW |
| Chamber Volume | 5.0 m³ |
| Swept Volume | 5.0 m³ |
| Hydraulic Cylinder Stroke | 750 mm |
| Hydraulic Cylinder Size | 125 Bore, 70 Rod (mm) x 2 |
| Discharge Opening | 2200mm Wide x 1200mm High |
| Maximum Compaction Force | 50 tonne |
| Power Required | 415V 32A |
| Hydraulic Pump Flow | 53 L/min |
| Pack Blade Face Size (W x H) | 2000mm x 1000mm |
| Weight | 6040 kg |
| Pressure | 270 bar (max 280) |
| Overall Dimensions (L x W x H) | 6900mm x 2460mm x 2790mm |













