Automotive & Manufacturing
Transportable
AUGER COMPACTOR

Overview
The Auger Compactor is designed with an auger to provide superior and more hygienic compaction of wet waste, paper, cardboard and other general waste.
The Auger can be designed for hand, bin lifter, tippler bin and chute loading. The superior compaction of the auger, provides high payloads to reduce your carbon footprint. When full, the entire unit is removed for emptying.
- Reduced cost to transport your waste and recycling off site.
- Reduced manual handling saving the cost of labour required to deal with the waste and recycling on site.
- Safer manual handling reducing lost time due to injury.
- Ability to handle your specific waste type and handling/loading method.
- Robust Construction ensures an extended equipment lifespan reducing the need for unforseen upgrades.
- Increased participation in a recycling program helping to reduce the organisations environmental impact.
- Increased time available for staff to concentrate on other activities within the business.
Key Features
Equipped with an auger screw to provide superior waste compaction.
Designed for hand, bin lifter, tippler and chute loading.
Engineered to withstand tough conditions and built with high-quality components.
Developed for ease of operations and hygienic compaction.
Technical Specifications
| Specification | Value |
|---|---|
| Clear Top Opening (W x L) | 1300 x 1000 mm |
| Machine Capacity | 120 m³/hr |
| Cycle Time | Continuous |
| Motor Size | 7.5 kW |
| Chamber Volume | 1.3 m³ |
| Swept Volume | 1.0 m³ |
| Container Penetration | 350 mm |
| Discharge Opening | 1000 mm Ø tube |
| Maximum Compaction Force | 19 kNm (Torque) |
| Power Required | 415V 20A |
| Hydraulic Pump Flow | 7.5kW electric motor / reduction drive gearbox |
| Pack Blade Face Size (W x H) | 900 mm Ø Auger screw |
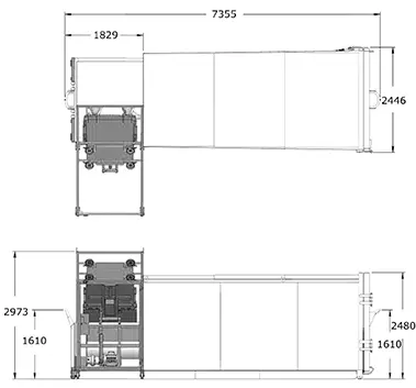
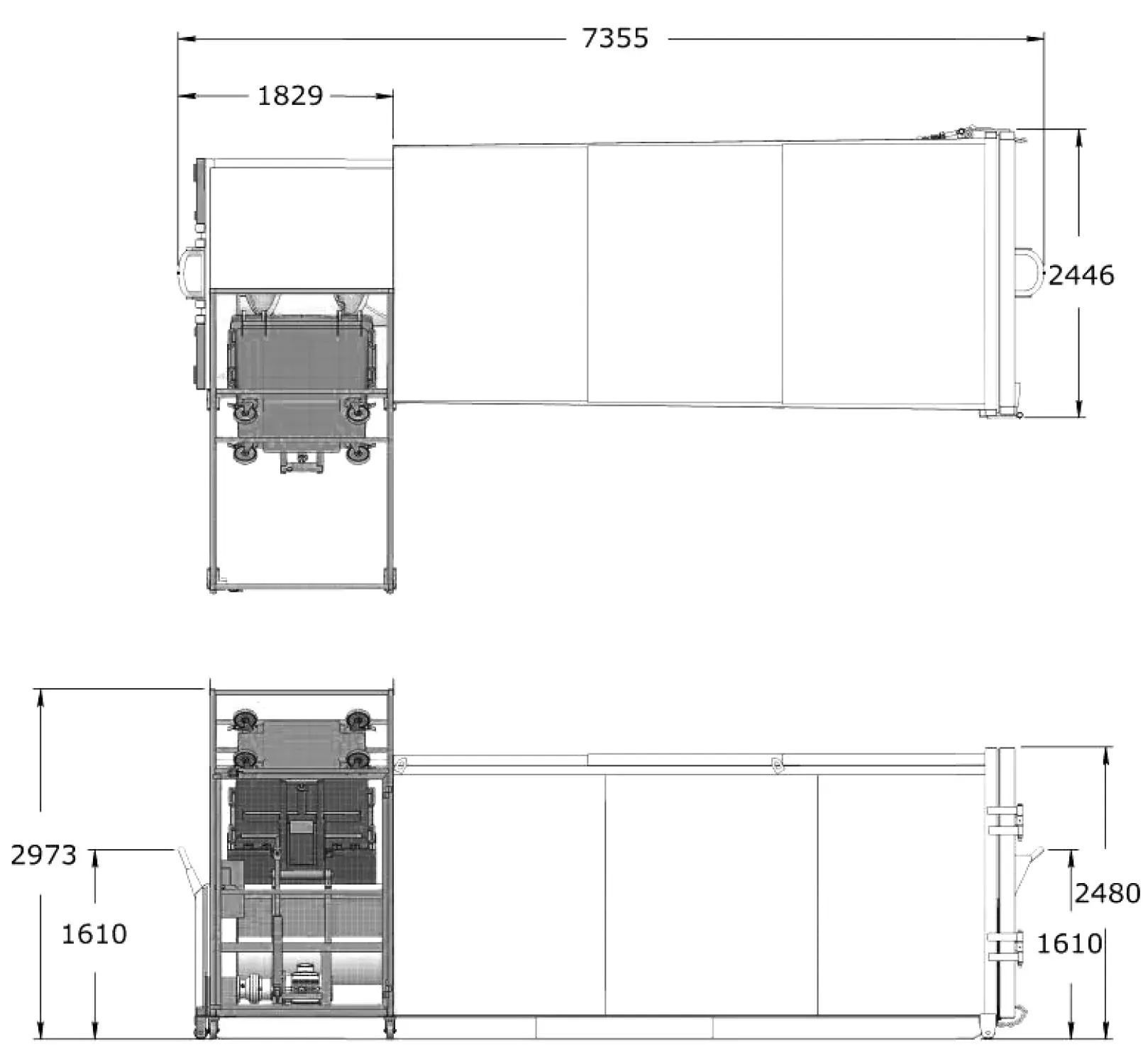
| Overall Dimensions | Between 4200 mm to 7200 mm L x 2480 mm x 2400 mm |

Unit Dimensions












