Stationary
AUGER COMPACTOR

Overview
The Stationary Auger Compactor is engineered for maximum compaction efficiency and continuous operation when processing large volumes of dry waste, cardboard, plastics, and other recyclable materials.
This heavy-duty system uses a powerful auger screw to continuously break down and compact materials, providing superior throughput and reliability compared to traditional ram compactors. When full, the compactor bin is easily removed for emptying, minimising downtime and transport costs while maximising payloads.
- Reduced cost to transport your waste and recycling off site.
- Reduced manual handling saving the cost of labour required to deal with the waste and recycling on site.
- Safer manual handling reducing lost time due to injury.
- Ability to handle your specific waste type and handling/loading method.
- Robust construction ensures an extended equipment lifespan reducing the need for unforeseen upgrades.
- Increased participation in a recycling program helping to reduce the organisation’s environmental impact.
- Increased time available for staff to concentrate on other activities within the business.
Key Features
Compatible with compactor bin sizes from 11m³ to 40m³.
Designed to handle a wide range of compactable dry waste including cardboard, plastic, and other recyclables.
Continuous auger operation delivers high throughput and consistent compaction performance.
Hydraulic and electrical systems housed within a protective enclosure for safety and durability.
Suitable for Cardboard, Plastic, Dry Waste, and Other Recyclables.
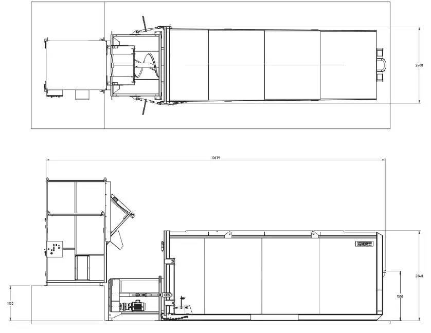
Technical Specifications
| Specification | Value |
|---|---|
| Clear Top Opening (W x L) | 1800 x 1350 mm |
| Machine Capacity | 120 m³/hr |
| Cycle Time | Continuous |
| Motor Size | 7.5 kW |
| Chamber Volume | 1.3 m³ |
| Swept Volume | 1.0 m³ |
| Container Penetration | 350 mm |
| Discharge Opening | 900 mm Ø |
| Maximum Compaction Force | 19 kNm (Torque) |
| Power Required | 415V 20A |
| Hydraulic Pump Flow | 7.5 kW electric motor / reduction drive gearbox |
| Pack Blade Face Size (W x H) | 777 mm Ø Auger screw |
| Weight | 1700 kg |
| Overall Dimensions (L x W x H) | 1955 mm x 2146 mm x 1410 mm |

Related Equipment












